Il vostro bagno… come non l’avete mai visto! Episode 3
Piccolo ma di tendenza
L’obiettivo di questa serie di articoli è di mostrarti, con esempi concreti, come, con un po’ di fantasia e, magari, con un piccolo aiuto è possibile ridisegnare gli ambienti in modo da creare un ambiente bello, armonico, di tendenza e soprattutto personalizzato in cui il nostro estro si trasforma in arredi, colori e materiali.
fase 1: Progettazione

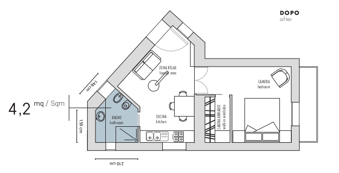
La fase della progettazione è fondamentale per ricreare gli ambienti secondo le moderne tendenze di ripartizione degli spazi e di design. Come potete vedere dalle figure, in questo caso si è deciso di recuperare lo spazio dell’ingresso creando un’entrata living e di rimpicciolire leggermente la cucina per creare un bagno di poco più di 4 mq quindi non grandissimo ma abbastanza spazioso per…
Fase 2: scelta dei materiali
Fase 3: il risultato

Volete anche voi un ambiente che rispecchi il vostro stile e che sia bello e ammaliante? Venite a trovarci nel nostro Showroom oppure scriveteci!
NIENTE DI PIU’ FACILE. Approfittate delle nostre offerte!



